臥室·怎裝 案例 | 140㎡現代簡約清新自然又實用
發布日期:2022-11-29 瀏覽次數:2636
臥室·怎裝 案例 | 140㎡現代簡約清新自然又實用
設計理念:這是一套現代簡約風的裝修案例,整體硬裝以灰白作為主色調,運用黑色線條作為點綴,簡潔而利落的設計讓空間更為寬廣通透,形塑現代簡約風格之韻味。同時從功能出發,講究生活的舒適、空間結構的明確美觀,強調外觀的簡潔大方。其中白色櫃體的運用起到至關重要的作用,是整體現代簡約風的主體色彩,也是靈魂所在。
案例簡介
麵積:140㎡
戶型:三居室
風格:現代簡約
產品:鞋櫃、餐邊櫃、陽台櫃
衣櫃、書桌櫃、櫥櫃
材質:香蕉免费视频多層板、石英石
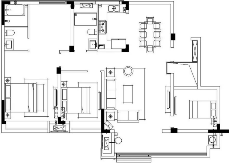
原布置圖
▲ 屋主為追求客餐廳足夠寬敞舒適將四居室改為三居室。由於麵積足夠寬敞,所以每個空間都顯得格外寬鬆、舒適。在現代風簡潔的硬裝基礎上,加入舒適的軟裝和大氣的家具,營造出一個愜意、輕鬆的居住氛圍。
改造後
▲ 契合屋主習慣,打造開放舒適的空間質感,打破空間的阻隔,餐廚一體化設計,同時與客廳關聯,增強日常生活互動,擴大了客廳空間,滿足二胎家庭在家戲耍空間需求。
客廳
▲ 入口換鞋處采用嵌入式櫃體設計,可以懸掛入戶換下來的衣物包包且具備換鞋凳功能,玄關白色櫃體增加儲物空間,鞋櫃與展示櫃相結合,視覺效果極佳,且與客廳相聯通,擴增入戶活動區域,消除局促感。
▲ 客廳與陽台聯通無阻,全景落地窗讓陽光能肆意揮灑進來,保證室內擁有充足采光。儲物櫃與陽台嵌入式洗衣櫃直接延展開來,儲物空間MAX。
餐廳
▲ 餐邊櫃的設計采用的也是嵌入式、展示櫃與儲物櫃相結合的方式,餐邊櫃的布置上,可以把冷水壺、水杯、小家電茶具等物品放在餐邊櫃上,保持餐桌台麵整潔,提升居家空間的美觀與舒適。
主臥
▲ 整麵牆的衣櫃很氣派,靠近窗邊的位置鏤空出一個梳妝台,不僅光線好,還省地實用,插入櫃體式的設計高級感十足,懸掛式圓形梳妝鏡,極具調性,很難不愛。
▲ 側邊鏤空分隔式設計簡直太得女主愛美之心,護膚品及包包放置在這裏,隨手即拿即用且不會雜亂。
女孩房
▲ 粉色係的愛莎主題公主房,陽光但不嬌弱。每個小女孩都有個粉色的公主夢,為緩和全屋粉色的壓力,定製白色的櫃子緩衝,為培養孩子的自理能力。書櫃與書桌相結合的設計,經濟又實用。
男孩房


▲ 男孩房采用的是小黃人主題,以白色作為主基調,搭配黃綠色點綴,使空間多了一份俏皮的元素,為孩子的童年留下一段美好的回憶。
廚房
▲ 廚房櫥櫃及吊櫃延用客廳的白色,但是采用的是PET門板,無毒無害,非常環保,甚至可達到食品級,易清潔且可以輔助采光,耐潮濕耐高溫,使用年限長。
臥室怎裝簡介
“臥室·怎裝”是香蕉视频APP污地板旗下品牌,以數以萬計的中國家庭為研究對象,係統分析、歸納總結出中國家庭生命周期的臥室需求定製模型,從單身貴族→二人世界→童年時光→學業有成→成家立業→兒孫滿堂,運用地牆門櫃一體化設計,給每一個家庭提供“怎裝”方案,滿足用戶“怎裝”都好看的需求。產品涵蓋地板、牆板、室內門、衣櫃定製、軟裝家居等家裝全品類,開啟新一代“怎裝”大定製。
臥室·怎裝 案例 | 140㎡現代簡約清新自然又實用
設計理念:這是一套現代簡約風的裝修案例,整體硬裝以灰白作為主色調,運用黑色線條作為點綴,簡潔而利落的設計讓空間更為寬廣通透,形塑現代簡約風格之韻味。同時從功能出發,講究生活的舒適、空間結構的明確美觀,強調外觀的簡潔大方。其中白色櫃體的運用起到至關重要的作用,是整體現代簡約風的主體色彩,也是靈魂所在。
案例簡介
麵積:140㎡
戶型:三居室
風格:現代簡約
產品:鞋櫃、餐邊櫃、陽台櫃
衣櫃、書桌櫃、櫥櫃
材質:香蕉免费视频多層板、石英石
原布置圖
▲ 屋主為追求客餐廳足夠寬敞舒適將四居室改為三居室。由於麵積足夠寬敞,所以每個空間都顯得格外寬鬆、舒適。在現代風簡潔的硬裝基礎上,加入舒適的軟裝和大氣的家具,營造出一個愜意、輕鬆的居住氛圍。
改造後
▲ 契合屋主習慣,打造開放舒適的空間質感,打破空間的阻隔,餐廚一體化設計,同時與客廳關聯,增強日常生活互動,擴大了客廳空間,滿足二胎家庭在家戲耍空間需求。
客廳
▲ 入口換鞋處采用嵌入式櫃體設計,可以懸掛入戶換下來的衣物包包且具備換鞋凳功能,玄關白色櫃體增加儲物空間,鞋櫃與展示櫃相結合,視覺效果極佳,且與客廳相聯通,擴增入戶活動區域,消除局促感。
▲ 客廳與陽台聯通無阻,全景落地窗讓陽光能肆意揮灑進來,保證室內擁有充足采光。儲物櫃與陽台嵌入式洗衣櫃直接延展開來,儲物空間MAX。
餐廳
▲ 餐邊櫃的設計采用的也是嵌入式、展示櫃與儲物櫃相結合的方式,餐邊櫃的布置上,可以把冷水壺、水杯、小家電茶具等物品放在餐邊櫃上,保持餐桌台麵整潔,提升居家空間的美觀與舒適。
主臥
▲ 整麵牆的衣櫃很氣派,靠近窗邊的位置鏤空出一個梳妝台,不僅光線好,還省地實用,插入櫃體式的設計高級感十足,懸掛式圓形梳妝鏡,極具調性,很難不愛。
▲ 側邊鏤空分隔式設計簡直太得女主愛美之心,護膚品及包包放置在這裏,隨手即拿即用且不會雜亂。
女孩房
▲ 粉色係的愛莎主題公主房,陽光但不嬌弱。每個小女孩都有個粉色的公主夢,為緩和全屋粉色的壓力,定製白色的櫃子緩衝,為培養孩子的自理能力。書櫃與書桌相結合的設計,經濟又實用。
男孩房


▲ 男孩房采用的是小黃人主題,以白色作為主基調,搭配黃綠色點綴,使空間多了一份俏皮的元素,為孩子的童年留下一段美好的回憶。
廚房
▲ 廚房櫥櫃及吊櫃延用客廳的白色,但是采用的是PET門板,無毒無害,非常環保,甚至可達到食品級,易清潔且可以輔助采光,耐潮濕耐高溫,使用年限長。
臥室怎裝簡介
“臥室·怎裝”是香蕉视频APP污地板旗下品牌,以數以萬計的中國家庭為研究對象,係統分析、歸納總結出中國家庭生命周期的臥室需求定製模型,從單身貴族→二人世界→童年時光→學業有成→成家立業→兒孫滿堂,運用地牆門櫃一體化設計,給每一個家庭提供“怎裝”方案,滿足用戶“怎裝”都好看的需求。產品涵蓋地板、牆板、室內門、衣櫃定製、軟裝家居等家裝全品類,開啟新一代“怎裝”大定製。
- 上一篇:臥室·怎裝 | 簡約輕奢風,一種溫暖的精致感
- 下一篇:無


